Sierre, appartement de 3.5 pièces avec une terrasse de 23 m2 dans un environnement calme RÉSERVÉ

Chemin des Vendanges 25, 3960 Sierre

CHF 435'000.-
1
2
3
4
5
6
7
8
9
10
11
12
13
14
15
16
    16 photos     Google Maps     Fichier ou plan   
  • Prix de vente : CHF 435'000.-
  • Surface habitable : ~ 85 m²
  • Disponible : Réservé

Description

Construit en 2017, ce charmant appartement de 3,5 pièces est situé au rez-de-chaussée de la résidence « Les Glariers », au Chemin des Vendanges 25, à Sierre.

Idéalement placé à proximité immédiate du centre-ville, il offre un cadre de vie paisible tout en étant proche de toutes les commodités : commerces, arrêt de bus et accès autoroutiers.

L’appartement bénéficie de beaux volumes et de rangements intégrés. La pièce à vivre, ouverte sur la cuisine, est baignée de lumière grâce à une large baie vitrée, sans vis-à-vis direct. Elle s’ouvre sur une belle terrasse orientée plein sud, offrant une superbe vue sur les montagnes et un espace idéal pour profiter des beaux jours.

L’espace nuit comprend deux chambres confortables, une salle de bains ainsi que des WC visiteurs.

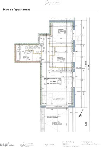
L’appartement dispose d’une surface habitable brute de 76.8 m2, à laquelle s’ajoute une terrasse de 23.6 m2 (total de la surface de vente pondérée avec 1/3 terrasse = 84.7 m2). Il s’organise de la manière suivante en considérant les surfaces habitables nettes (=balayables) :

  • Un hall d’entrée de 7.6 m2 avec armoires intégrées,
  • Un séjour avec cuisine ouverte de 28.2 m2,
  • Une grande chambre de 12.4 m2,
  • Une petite chambre de 10.3 m2,
  • Une salle d’eau avec baignoire et espace pour colonne de lavage de 7.6 m2,
  • Un WC/visiteurs de 2 m2,
  • Une terrasse de 23.6 m2

Le bien comporte également une cave et une place de parc extérieure qui peut être acquise pour 10'000.- CHF

L’appartement est actuellement loué CHF 1'650.- charges et place de parc extérieure comprise. Les charges s’élèvent à 42 CHF par m2 et par année. Le rendement sur fonds propres, en considérant les rentrées nettes (déduction charges locataires et propriétaires, fonds de rénovation immeuble et spécifique pour local, frais de notaire répartis sur 25 ans, risque locatif, …) s’élève à 6%.

Points forts :

  • Moderne et fonctionnelle
  • Proche du centre et des commodités
  • Environnement calme et vue dégagée
  • Grande terrasse

Tout afficher

Détails


  • Pièce(s) : 3.5
  • Chambre(s): 2
  • Salle(s) d'eau: 2
  • Niveau: rez-sup.
  • Catégorie : Appartement
  • Réf. : 2162

 Exposition


 A proximité


 Environnement


 Extérieur


 Intérieur


 Ensoleillement et vue


Situation géographique

Voir en Street View    Voir sur Google Maps