Pramagnon, maison familiale de 230m2 avec pelouse et places de parc extérieures

Chemin du Trot 14, 3979 Pramagnon

CHF 560'000.-
1
2
3
4
5
6
7
8
9
10
11
12
13
14
15
16
17
18
19
20
21
22
23
24
25
26
27
28
29
    29 photos     OpenStreetMap     Fichier ou plan   
  • Prix de vente : CHF 560'000.-
  • Surface habitable : ~ 230 m²
  • Surface de la parcelle : ~ 640 m²
  • Volume : ~ 590 m³
  • Disponible : A convenir

Description

Cette charmante maison familiale composée de deux appartements a été construite dans les années 1930 au chemin du Trot 14, à Pramagnon, dans le village de Grône.

La maison offre un magnifique dégagement garanti à terme, puisqu’elle se situe en bord de zone à bâtir, en plus d’être située dans un quartier très agréable et calme.

Composée de deux appartements, cette propriété a bénéficié d’une rénovation complète dans les années 1970, ainsi qu’une deuxième rénovation du rez-de-chaussée dans les années 2000 (cuisine, fenêtres, sols, etc.). Orientée à 360°, elle est très lumineuse, ce qui en fait un lieu de vie accueillant. La toiture et la structure sont en bon état et ne nécessitent pas de travaux. La maison offre de multiples possibilités d’aménagement, les deux appartements pourraient facilement être réunis afin de créer un lieu de vie idéal pour une famille.

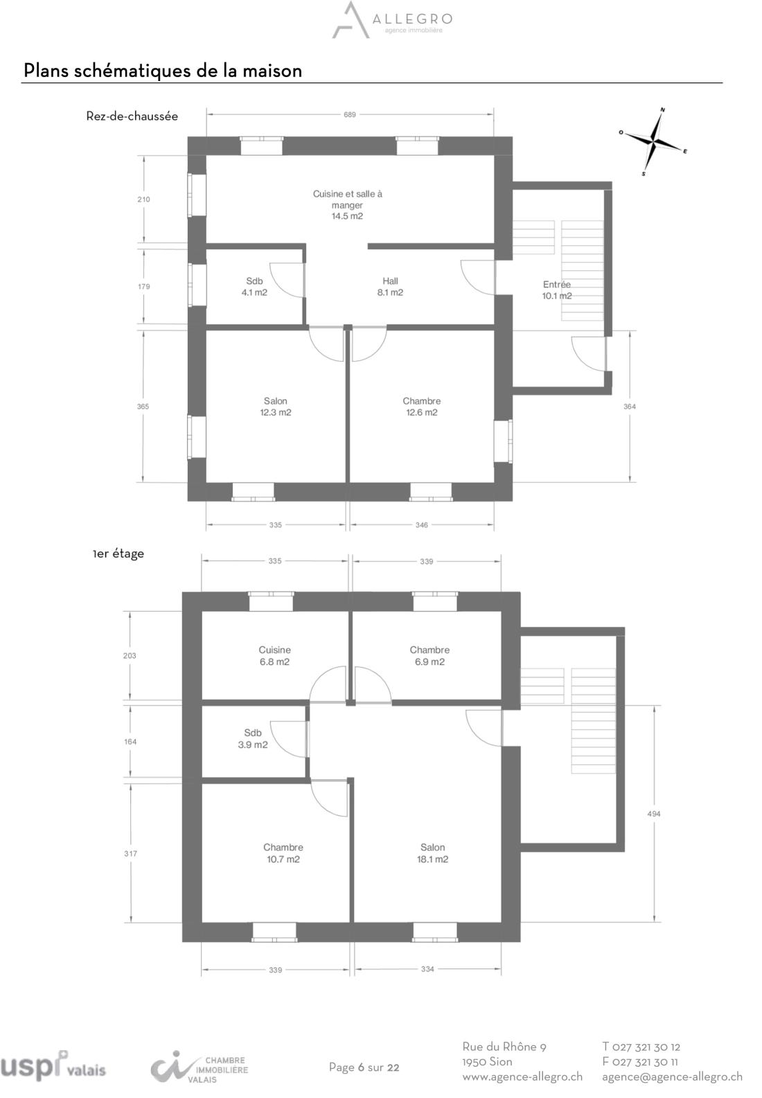
Réparti sur trois niveaux, le volume s’élève à 590 m3 (selon SIA 416) pour une surface habitable d’environ 230 m2. En surface habitable nette (= m2 balayables), la distribution des pièces s’organise de la manière suivante :

Au rez-de-chaussée :

  • une entrée de 10.1 m2,
  • un hall de distribution de 8.1 m2,
  • une cuisine/salle à manger de 14.5 m2,
  • un séjour de 12.3 m2,
  • une chambre de 12.6 m2,
  • une salle de douche de 4.1 m2.

Un accès direct au magnifique pelouse et jardin arboré de 240 m2 d’un seul tenant offrent un cadre verdoyant au sud, tandis qu’au nord se trouve une vigne offrant un potentiel intéressant.

Au 1er étage :

  • un séjour/salle manger de 18.1 m2,
  • une cuisine de 6.8 m2,
  • deux chambres de respectivement 6.9 et 10.7 m2,
  • une salle de douche de 3.9 m2.

A l’entresol :

  • une chambre chauffée de 16.0 m2,
  • un carnotzet de 16.3 m2,
  • une cave de 4.5 m2,
  • une buanderie/local technique de 7.8 m2.

La parcelle dispose également de places de parc extérieures comprises dans le prix de vente.

La vigne attenante au sud de la parcelle pourrait être acquise en sus.

Points forts :

  • Maison avec cachet et caractère
  • Magnifique potentiel de rénovation avec de nombreux espaces
  • Quartier calme et verdoyantJoli dégagement sans vis-à-vis

Tout afficher

Détails


  • Chambre(s): 4
  • Salle(s) d'eau: 2
  • Catégorie : Maison idividuelle
  • Réf. : 2177

 Exposition


 A proximité


 Environnement


 Extérieur


 Ensoleillement et vue


Situation géographique

Voir en Street View    Voir sur Google Maps